Appartement - à vendre - 372 500 €   Hors frais
7500 Tournai

Description

RESIDENCE 7ème ART

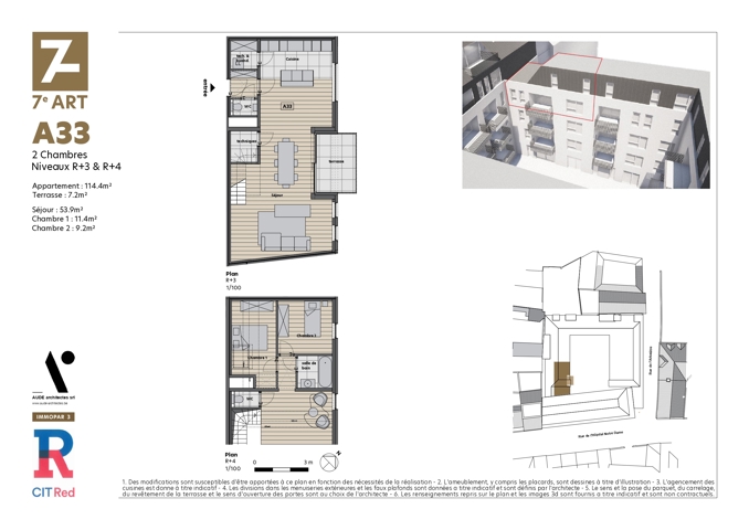
Appartement duplex neuf de 2 chambres situé aux 3ème et 4ème étages, d'une superficie de 114,4 m², composé d'un hall d'entrée, spacieux séjour avec cuisine super équipée, buanderie, wc, salle de bain, 2 chambres, et terrasse de 7,2 m².
Finitions haut de gamme et personnalisables (cuisine super équipée, sanitaires premium, parquet en chêne semi-massif…).
Accès au patio central verdoyant et piscine naturelle.
Possibilité de cave, parking et stationnement vélo en supplément.
Peb projeté : A
Vente sous régime T.V.A. – Loi Breyne
Bien référencé 5653770
Informations et rendez-vous en notre agence IMMO LECLERCQ - 069/891.891 - contact@immo-leclercq.com ou surfez sur www.immo-leclercq.com.
Publicité à caractère non contractuel et ne constituant pas une offre. Les propriétaires se réservent le droit de décision, d’acceptation ou non sur toute(s) offre(s) soumise(s) pour leur bien.

114,4 m² 2 1

Rue de l'Hôpital Notre Dame - 7500 Tournai
Agence immobilière Leclercq

Général

Référence 7244509
Catégorie Appartement
Nombre de chambres 2
Nombre de salles de bain 1
Terrasse Oui
Surface habitable 114,4 m²

Bâtiment

Année de construction 2024

Nom, catégorie & situation

Etage 3
Nombre d'étages 5

Equipement de base

Accès handicapés Oui
Cuisine Oui
Chauffage (ind/coll) (type (ind/coll)) collectif
Ascenseur Oui
Double vitrage Oui
Chauffage (type) chauffage au sol
Type d'ascenseur personnes
Type de cuisine super-équipée
Sdb (type) bain
Parlophone Oui
Videophone Oui

Divers

Buanderie Oui

En chiffres

Nbre de toilette(s) (nombre) 2
Chambre 1 (surface) 11.4 m²
Chambre 2 (surface) 9.2 m²
Salle de séjour (surface) 53.9 m²

À proximité

Magasins (distance (m)) 50
Écoles (distance (m)) 200
Transports en commun (distance (m)) 250
Centre sportif (distance (m)) 800
Magasins Oui
Ecoles Oui
Transports en commun Oui
Centre sportif Oui
Autoroute Oui
Autoroute (distance (m)) 1500

Equipement extérieur

Piscine Oui

Charges & Rendement

Sous régime TVA Oui

Raccordements

Égouts Oui
Électricité Oui
Gaz Oui
Câbles téléphoniques Oui
Eau Oui

Équipements techniques

Châssis (type) aluminium

Spécificités terrain

Type d'environnement centre ville
Type d'environnement 2 central

Caractéristiques Principales

Surface de terrasse 1 7.2 m²

Documents

Prendre contact pour le bien : 7244509
* Champs obligatoires

En envoyant ma demande de contact, je déclare accepter que mes données complétées dans ce formulaire soient utilisées pour les buts mentionnés ci-dessus par LEGRAND Julien; et ce, en accord avec la charte de protection de la vie privée du site. Je peux à tout moment retirer mon consentement en introduisant une demande écrite à l’adresse contact@immo-leclercq.com.

Préférences pour les cookies

La protection de vos données personnelles est importante pour nous. C’est pourquoi nous détaillons ci-dessous les différents services et fonctionnalités du site qui utilisent des cookies et nous vous laissons décider des cookies que vous souhaitez autoriser ou refuser.

Veuillez cependant noter que si vous bloquez certains types de cookies, cela pourrait impacter votre expérience de navigation sur notre site ainsi que les fonctionnalités disponibles.

Nous utilisons des cookies fonctionnels obligatoires pour assurer le bon fonctionnement du site. Ils sont, par exemple, nécessaires pour retrouver le résultat d’une recherche ou enregistrer le choix de la langue.

Certaines fonctionnalités, comme l’affichage de vidéos ou de cartes géographiques, sont assurées via des composants externes développés par des partenaires comme YouTube ou Google. Certains composants utilisent des cookies qui sont susceptibles de permettre à ces tiers de suivre le comportement des internautes afin, par exemple, de réaliser du ciblage publicitaire. L’activation de ces fonctionnalités et des cookies associés est donc soumis à votre consentement.