Appartement - à vendre - 253 450 €   Hors frais
7500 Tournai

PEB : Ap

Description

RESIDENCE "CAPUCINE" – APPARTEMENTS NEUFS
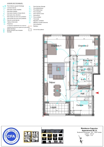
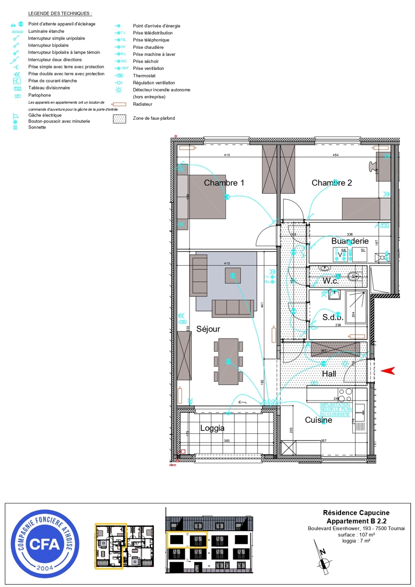
L’agence Leclercq vous présente ce magnifique appartement 2 chambres d’une superficie de 107 m² situé au 2ème étage avec terrasse de 7 m².
Situation idéale, à proximité immédiate de la gare, des transports, des écoles et des commerces.

L’appartement se compose comme suit : un hall d’entrée, grand séjour avec cuisine équipée ouverte, 2 chambres, wc, buanderie et salle de bains. L'appartement est complété d'une terrasse.

Caractéristiques techniques :
✔️Ascenseur
✔️ Chauffage central gaz
✔️ Isolation acoustique à la pointe
✔️ Châssis PVC double vitrage
✔️ Cuisine comprise et personnalisable en showroom.
✔️PEB "A+" - soit 38 kWh/m².an - consommation théorique totale d'énergie primaire 4.020 kWh/an - N°20241206500851

Les petits plus selon l’agence immobilière Leclercq :
✨Espaces lumineux et bien agencés
✨Matériaux de qualité & finitions modernes
✨Tout est à portée de main : écoles - transports - commerces
✨Possibilité de parking et cave en supplément
✨Une résidence à taille humaine, moderne et conviviale

Vente sous régime TVA - Loi Breyne.

Prenez rendez-vous pour une visite de l'appartement témoin au 0474/632.493 ou par mail contact@immo-leclercq.com

Bien référencé : 7126080

Publicité à caractère non contractuel et ne constituant pas une offre. Les propriétaires se réservent le droit de décision, d'acceptation ou non sur toute(s) offre(s) soumise(s) pour leur bien.

107 m² 2 1

Boulevard Eisenhower 193 - 7500 Tournai

Général

Référence 7126080
Catégorie Appartement
Nombre de chambres 2
Nombre de salles de bain 1
Terrasse Oui
Surface habitable 107 m²
Disponibilité à l'acte

Bâtiment

Année de construction 2025

Nom, catégorie & situation

Etage 2
Nombre d'étages 3

Equipement de base

Cuisine Oui
Chauffage (ind/coll) (type (ind/coll)) individuel
Ascenseur Oui
Double vitrage Oui
Chauffage (type) gaz (chau. centr.)
Type d'ascenseur personnes
Type de cuisine super-équipée
Sdb (type) douche
Double vitrage (type) isol. thermique et acoustique
Parlophone Oui
Videophone Oui

Divers

Buanderie Oui

En chiffres

Nbre de toilette(s) (nombre) 1

À proximité

Magasins (distance (m)) 100
Écoles (distance (m)) 500
Transports en commun (distance (m)) 50
Centre sportif (distance (m)) 2000
Magasins Oui
Ecoles Oui
Transports en commun Oui
Centre sportif Oui
Autoroute Oui

Charges & Rendement

Sous régime TVA Oui

Raccordements

Égouts Oui
Électricité Oui
Gaz Oui
Câbles téléphoniques Oui
Eau Oui

Équipements techniques

Châssis (type) pvc

Spécificités terrain

Type d'environnement proximité de la gare
Type d'environnement 2 Vue dégagée

Caractéristiques Principales

Surface de terrasse 1 7 m²

Energie

Label PEB (classe) Ap
PEB E-SPEC (kwh/m²/an) 38
E total (Kwh/an) 4020
PEB code unique 20241206500851
PEB valide jusqu'au (datetime) 06/12/2034
Date du PEB (datetime) 06/12/2024

Documents

Prendre contact pour le bien : 7126080
* Champs obligatoires

En envoyant ma demande de contact, je déclare accepter que mes données complétées dans ce formulaire soient utilisées pour les buts mentionnés ci-dessus par LEGRAND Julien; et ce, en accord avec la charte de protection de la vie privée du site. Je peux à tout moment retirer mon consentement en introduisant une demande écrite à l’adresse contact@immo-leclercq.com.

Préférences pour les cookies

La protection de vos données personnelles est importante pour nous. C’est pourquoi nous détaillons ci-dessous les différents services et fonctionnalités du site qui utilisent des cookies et nous vous laissons décider des cookies que vous souhaitez autoriser ou refuser.

Veuillez cependant noter que si vous bloquez certains types de cookies, cela pourrait impacter votre expérience de navigation sur notre site ainsi que les fonctionnalités disponibles.

Nous utilisons des cookies fonctionnels obligatoires pour assurer le bon fonctionnement du site. Ils sont, par exemple, nécessaires pour retrouver le résultat d’une recherche ou enregistrer le choix de la langue.

Certaines fonctionnalités, comme l’affichage de vidéos ou de cartes géographiques, sont assurées via des composants externes développés par des partenaires comme YouTube ou Google. Certains composants utilisent des cookies qui sont susceptibles de permettre à ces tiers de suivre le comportement des internautes afin, par exemple, de réaliser du ciblage publicitaire. L’activation de ces fonctionnalités et des cookies associés est donc soumis à votre consentement.